Поиск

Вид имушества

Место

Цена

Площадь

Kомнаты

Другие

Калькулятор ипотеки

Первый взнос
Ежемесячный платеж
Квартира
388 500 €

Centrs, Akas iela 4, Латвия

4 200,00 EUR/m2

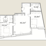
Kомнаты: 3

Этаж: 6. от 7.

Площадь: 92.5 m2

Тип дома: Железобетонный каркас

Серия: Hовый проект

Лифт: Есть

Балкон: Нет

Oтопление: Городская

Дополнительная информация

Очаровательная трёхкомнатная квартира в фасадной части здания.

Мы предлагаем современный многоквартирный дом в центре Риги, на улице Акас 4 – проект, который объединяет продуманную конструкцию, высокое качество и комфорт.

В проекте всего 24 квартиры с 2–5 комнатами.

Пентхаус для самых требовательных клиентов (7 этаж):
– Индивидуальный вход из лифта
– 5 комнат
– Просторная терраса
– Возможность обустроить камин

Отделочные материалы и оборудование
– Высококачественные окна: остекление Transparance с профилями SAPA
– Паркет: трёхслойный дуб Boen белый, матовый, толщина – 14 мм
– Сантехника: Grohe, керамика Villeroy & Boch, ванны – PAA
– Межкомнатные двери: Prodex, шпонированное дерево
– Входные двери: Latwood, огнестойкие и шумоизоляционные
– Встроенные шкафы с LED освещением в коридорах
– Система «умный дом»

Конструкция и фасад
– Железобетонный монолитный каркас с перегородками из блоков Fibo и железобетона. Конструкция на 30% прочнее аналогичных проектов
– Ненесущие перегородки – каркасная конструкция с огнестойкой ватой и двойной отделкой гипсокартоном
– Несущие конструкции обшиты двойным гипсокартоном
– Здание утеплено 150 мм каменной ватой
– Фасад частично облицован цементными плитами Neolit (дышащий фасад), частично оштукатурен
– Конструкция крыши: монолит с утеплением 100 мм

Комфорт и инженерные коммуникации
– Индивидуальные счётчики воды, тепла и электричества для каждой квартиры
– Утеплённые полы: бетонный слой, каменная вата, сухой бетон и финишное покрытие (паркет или плитка)
– В санузлах – электрический подогрев полов и полотенцесушители, подключённые к горячему водоснабжению (тепло круглый год)
– Высота потолков в квартирах – 2,65 м, в коммерческих помещениях – 2,65–3,80 м
– Регулируемые радиаторы
– На кухнях – подключение 380W и вентиляция для плиты
– Оптоволоконный интернет

Безопасность и технологии
– Пожарная сигнализация с подключением к пульту охраны
– На каждом этаже мощные вентиляторы, препятствующие распространению дыма в случае ЧС
– Лифт Schindler – современный и надёжный
– Лестничные клетки с постоянным LED освещением

Подземная парковка
– Автоматическая система вентиляции – при повышении уровня CO₂ включаются вентиляторы на крыше, обеспечивая приток свежего воздуха
– Технические помещения: вентиляция, отопление, серверные и др.
– Въезд: не замерзающий пандус с автоматическим подогревом (активируется при –1°C)

Коммерческие помещения на 1 этаже
– Площади: 107 м² и 230 м² – отличная возможность для вашего бизнеса

Tomass Riksis

Партнер / Консультант по недвижимости

+371 28318333

tomass@codoreal.com

Сертификат LANIDA No. А-246

Все предложения агента

Дополнительная информация

Очаровательная трёхкомнатная квартира в фасадной части здания.

Мы предлагаем современный многоквартирный дом в центре Риги, на улице Акас 4 – проект, который объединяет продуманную конструкцию, высокое качество и комфорт.

В проекте всего 24 квартиры с 2–5 комнатами.

Пентхаус для самых требовательных клиентов (7 этаж):
– Индивидуальный вход из лифта
– 5 комнат
– Просторная терраса
– Возможность обустроить камин

Отделочные материалы и оборудование
– Высококачественные окна: остекление Transparance с профилями SAPA
– Паркет: трёхслойный дуб Boen белый, матовый, толщина – 14 мм
– Сантехника: Grohe, керамика Villeroy & Boch, ванны – PAA
– Межкомнатные двери: Prodex, шпонированное дерево
– Входные двери: Latwood, огнестойкие и шумоизоляционные
– Встроенные шкафы с LED освещением в коридорах
– Система «умный дом»

Конструкция и фасад
– Железобетонный монолитный каркас с перегородками из блоков Fibo и железобетона. Конструкция на 30% прочнее аналогичных проектов
– Ненесущие перегородки – каркасная конструкция с огнестойкой ватой и двойной отделкой гипсокартоном
– Несущие конструкции обшиты двойным гипсокартоном
– Здание утеплено 150 мм каменной ватой
– Фасад частично облицован цементными плитами Neolit (дышащий фасад), частично оштукатурен
– Конструкция крыши: монолит с утеплением 100 мм

Комфорт и инженерные коммуникации
– Индивидуальные счётчики воды, тепла и электричества для каждой квартиры
– Утеплённые полы: бетонный слой, каменная вата, сухой бетон и финишное покрытие (паркет или плитка)
– В санузлах – электрический подогрев полов и полотенцесушители, подключённые к горячему водоснабжению (тепло круглый год)
– Высота потолков в квартирах – 2,65 м, в коммерческих помещениях – 2,65–3,80 м
– Регулируемые радиаторы
– На кухнях – подключение 380W и вентиляция для плиты
– Оптоволоконный интернет

Безопасность и технологии
– Пожарная сигнализация с подключением к пульту охраны
– На каждом этаже мощные вентиляторы, препятствующие распространению дыма в случае ЧС
– Лифт Schindler – современный и надёжный
– Лестничные клетки с постоянным LED освещением

Подземная парковка
– Автоматическая система вентиляции – при повышении уровня CO₂ включаются вентиляторы на крыше, обеспечивая приток свежего воздуха
– Технические помещения: вентиляция, отопление, серверные и др.
– Въезд: не замерзающий пандус с автоматическим подогревом (активируется при –1°C)

Коммерческие помещения на 1 этаже
– Площади: 107 м² и 230 м² – отличная возможность для вашего бизнеса